HAMBURGER HÜTTEN
ARCHITEKTURBÜRO

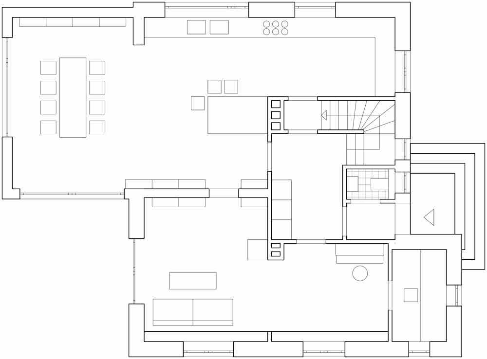
Die Verflechtung des eher kleinteiligen, aber sehr charmanten Bestandes mit neuen, weiten und hellen Räumen im zweigeschossigen, kubischen Anbau prägt den besonderen Charakter dieses Hauses.
Sorgfältig instand gesetzt, konnten viele der originellen Elemente des Bestandes bewahrt und in den Umbau integriert werden.
Von der großzügig dimensionierten Wohnküche im Anbau über das Kaminzimmer und die Bibliothek bis hin zum schmalen Arbeistplatz mit den Bullaugen: Orte der Geselligkeit, der Entspannung und des Rückzugs fügen sich zu einer fein abgestimmten Raumfolge, die den Lebensstil und die Gewohnheiten der Hausbewohner spiegelt.
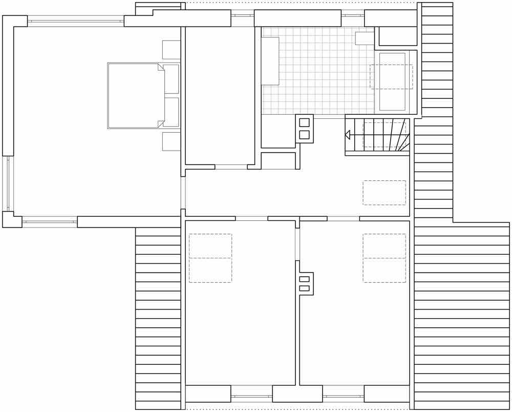
Im Obergeschoss finden sich neben einem geräumigen Familienbad und einer Lese-Ecke auf der Galerie das Elternschlafzimmer mit Ankleideraum und die zwei bis in den First geöffneten Kinderzimmer.







