HAMBURGER HÜTTEN
ARCHITEKTURBÜRO
CHARLOTTE
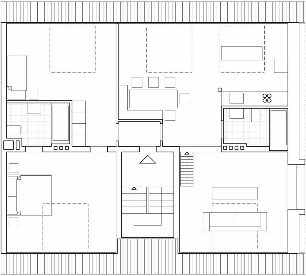
Bei diesem Low-Budget-Projekt wurde das Dachgeschoss eines in den 60er Jahren erbauten Mehrfamilien- hauses entkernt und zu einer lichtdurchfluteten Wohnung mit Wohn- und Schlafbereich umgebaut.
In detailverliebter Feinarbeit wurden die Deckenbalken, Stützen und Teile des Mauerwerks freigelegt. Teile des vorgefundenen Inventars wie die alte Bodentreppe wurden überarbeitet und wieder verwendet.
Die ursprüngliche Aufteilung in zwei separate Wohneinheiten wurde als optionale und funktionale Teilung aufrecht erhalten. Ein Eingangsflur erschließt den bis ins Dach offenen Wohnbereich und auf der anderen Seite den Schlaftrakt mit Garderobe. Zwei Bäder und ein vorgerüsteter Küchenanschluss im Schlaftrakt erlauben die spätere Trennung der Wohneinheiten.




